
Mari Svanström
Uthyres / Hammarby Sjöstad
Hammarby Allé 112
Snygg och representativ kontorslokal på rätt adress
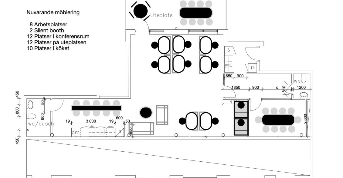
Med ett av Hammarby Sjöstads mest strategiska läge nära kommunikationer, infrastruktur och trevliga lunchrestauranger. ligger denna mycket kvadratsmarta och välhållna kontorslokal som rymmer ca 8 fasta arbetsplatser och ett rejält konferensrum. Trevligt och fullt utrustat kök och plats för matmöblemang. Ett duschrum med wc och ytterligare en wc. en trevlig arbetsplats med fönster mot gården och stor uteplats med eftermiddagssol. Stenlagd entré med bra avhäningsmöjligheter. Då fönster och uteplats vetter mot gården skänker det en lugn och ostörd arbetsmiljö. Eventuellt kan nuvarande kontorsmöbler förvärvas.
Nuvarande hyresgäst stortrivs i lokalen, men har nu växt ur den och behöver en större.
Så här säger nuvarande hyresvärd: " Vi kommer sakna vårt fina kontor, både för att det är trivsamt och för det fantastiska läget, med det stora utbudet av restauranger och butiker i kvarteret "
Hyra 22.000kr per mån. I hyran ingår värme, vatten, sophantering och trappstädning. Tillkommer gör kostnader för el, bredband och lokalens del av fastighetsskatten. Fastighetsskatten är för närvarade 3051kr/mån. (36 612/12=3051). Hyran faktureras kvartalsvis och justeras årligen med med index eller 2%,
Tillträde enligt ök.
Möjlighet finns att hyra garageplatser av samma hyresvärd.
Byggnadsfakta
- Fastighetsbeteckning
- Mältaren 1
Ekonomi
- Hyra
- 22 000 kr
- Fastighetsskatt/avgift
- 36 612 kr
Fakta
- Rum
- 2,5
- Område
- Hammarby Sjöstad
- Typ
- Lokal
- Adress
- Hammarby Allé 112
- Postnr
- 12065
- Ort
- Stockholm
Ansvarig Mäklare














































