
Mari Svanström
Småhus / Grödby
Stanganvägen 33
Souterängvilla med stor utvecklingpotential
I egenskap av god man förordnad av Södertörns tingsrätt jämlikt samäganderättslagen försäljer undertecknad härmed fastighet med fastighetsbeteckning Nynäshamn Trollsta 1:27, på offentlig auktion. Fastigheten är belägen på adress; Stanganvägen 33, 148 96 Sorunda:
Längst ner på barnvänlig återvändsgata ligger denna soliga villa med stort altandäck i söder. En bostad som är i behov av ytskiktsrenovering men nyligen gemgått stora renoveringar så som nytt yttertak, ny fasad, nya fönster och ny dränering. Det som kvarstår är således den invändiga renoveringen av ytskikten.
Hall Välkomnande hall som mynnar ut till alla utrymmen på våningsplanet; Vardagsrum och kök i öppen planlösning samt tre sovrum.
Vardagsrum Ett stort fönsterparti skänker ljus och trivsel och i mitten finns en mysig eldstad. Vardagsrummet är tillräckligt stort för att rymma både middagsbord och soffmöblemang. Trevlig öppan planlösning mot kök.
Kök Köket monterades 2008 och går i högglansigt svart ovh rosé. Generösa arbetsytor och förvaring. Kyl och frys saknas.
Sovrum Tre rofyllda sovrum varav det största med utgång till uteplats.
Badrum Badrum med våtrumsmatta, badkar, wc och handfat.
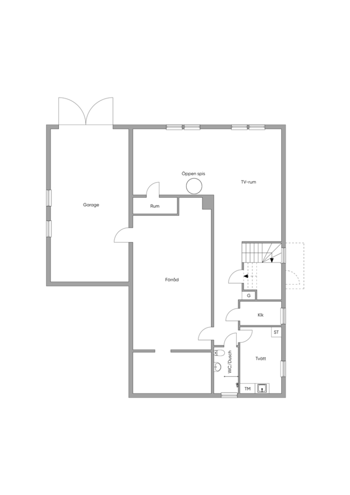
Souterrängplan
Allrum/gillestuga Detta utrymme kan t.ex. användas som sällskapsrum, bibliotek eller lekrum. Här finns bostadens andra eldstad.
Duschrum Kaklatrum med duschhörna, wc och handfat.
Tvättstuga Tvättmaskin. Här finns plats för klädvård och förvaring
Verkstad/förråd
Garage
Taxeringsvärdet uppgår till 3 016 000 kr, varav byggnadsvärde uppgår till 2 115 000 kr och markvärde uppgår till 901 000 kr per taxeringsår 2024. Fastigheten har omfattande renoveringsbehov och säljs i befintligt skick med fullständig friskrivning för fastighetens skick.
Visning av fastigheten kommer att ske 9 november kl 11:00-12:00 och 16 november kl 12:00-13:00. Auktionen kommer att äga rum på Therese Ström Advokatbyrå AB:s kontorslokal, Södra Agnegatan 29, 112 29 Stockholm, 4 tr., på fredag den 28 november klockan 10.00. Föranmälan krävs både till visning och till auktion. Anmälan görs till advokat Therese Ström per mail; therese.strom@advokatstrom.com. Utropspris: 2 625 000 kronor. Köpeskillingen erläggs med minst 10% kontant vid auktionstillfället samt resterande del på tillträdesdagen. Tillträdesdag enligt överenskommelse. Fri prövningsrätt förbehålles. Personlig närvaro eller närvaro genom ombud med skriftlig fullmakt fordras vid auktionen. Telefonbud godtas inte. Objektsbeskrivning erhålles vid föranmälan eller visning. Advokat Therese Ström Therese Ström Advokatbyrå AB Södra Agnegatan 29, 112 29 Stockholm 08-400 257 91 therese.strom@advokatstrom.com
Byggnadsfakta
Kommentar till byggnaden
Vidbyggt garage med betongplatta
Renoveringar
2017 Ändrat planlösning mellan kök och vardagsrum 2019 Ny diskmaskin 2019 Dränering 2020 Ny fasad 2022 Ny ytterdörr 2022 Nya fönster 2022 Ny fläktmotor till meklansiks ventilation installeras. 2022 Nytt tak
- Fastighetsbeteckning
- NYNÄSHAMN TROLLSTA 1:27
- Uppvärming
- Direktverkande el och ved
- Grund
- Källare/Betongplatta
- Bjälklag
- Trä och lättbetong
- Fasad
- Tegel och träpanel
- Tak
- Betongpannor
- Fönster
- 3-glasfönster
- Ventilation
- Självdrag
- Vatten
- Kommunalt vatten året om
- Avlopp
- Kommunalt avlopp
- Radon
- Ja
- Om radon
- Radonmätning utfördes 2017-05-16. Årsmedelvärde är 400Bq/m3. Riktvärdet ligger på 200Bq/m3
Energideklaration
- Energistatus
- Energideklaration är utförd
- Energiklass
- E
- Energiprestanda
- 0 kWh/m2
- Elförbrukning
- 35 438 kWh/år
- Personer i hushållet
- 5
Servitut mm
- Planer och bestämmelser: Grödby 8:1 mfl, Byggnadsplan (Beslutsdatum: 1976-10-29, Senast ändrad: 2022-08-15)
- Inskrivna övriga rättigheter, belastningar och övriga gravationer: Gorran, Vattenskyddsområde (Beslutsdatum: 2019-06-12, Registreringsdatum: 2020-09-07, Senast ändrad: 2024-07-05)
- Gemensamhetsanläggning: NYNÄSHAMN GRÖDBY GA:1
Ekonomi
- Fastighetsskatt/avgift
- 10 074 kr
- Sotningskostnad
- 300 kr/år
- Vatten och Avlopp
- 13 200 kr/år
- Renhållning
- 2 240 kr/år
- Elkostnad
- 49 680 kr/år
- Totala driftskostnader
- 65 420 kr/år
- Taxeringsår
- 2024
- Taxeringsvärdesår
- 1975
- Taxeringvärde noggrannhet
- Fastställt
- Taxeringsvärde byggnad
- 2 115 000 kr
- Taxeringsvärde mark
- 901 000 kr
- Summa taxeringsvärde
- 3 016 000 kr
- Standardpoäng
- 37
Närområdet
Lugnt, naturskönt, barnvänligt område med närhet till havet. En kvart från Ösmo med matbutik och pizzeria samt ca 20 min från Nynäshamn med all tänkbar service.
Förskolor Mamma mu, Solrosen, Sunnerby och Norra Sornda familjedaghem -Skolor Sunnerby åk 4-9 I Ösmo ligger Vantaskola F-9.
Bussline 850 ligger ca 100 meter från huset. Den går till Segersäng och pendeltåg. Från Segersäng tar det ca 50 min till Stockholm C. Pendlingstid med bil från bostaden till Stockholm är ca 45 min.
Allmän information
Ovanstående uppgifter om fastigheten kommer huvudsakligen från säljaren och kontrolleras av fastighetsmäklaren endast om omständigheterna ger anledning till detta.
Samtliga areauppgifter är hämtade från fastighetsregistret eller baserade på säljarens information. Dessa uppgifter kan av olika anledningar vara fel. Den köpare som tycker att arean har betydelse för köpet bör därför vidta en uppmätning.
Vill du ha hjälp att beräkna de kommande boendekostnaderna för denna bostad? Ansvarig mäklare upprättar gärna en individuell boendekalkyl.
BUDGIVNING
Vi tillämpar öppen budgivning. Det innebär att du som spekulant lämnar ditt bud till den ansvarige fastighetsmäklaren, som löpande redovisar det högsta budet till säljaren. Som utgångspunkt redovisas alla bud även till budgivare och spekulanter. Säljaren kan dock besluta att alla bud inte ska redovisas under budgivningsprocessen vilket gör att avvikelser från denna utgångspunkt kan förekomma.
Senast på tillträdesdagen lämnas budgivningslistan med namn, telefonnummer, bud och tidpunkt till köpare och säljare.
Säljaren har alltid fri prövningsrätt och behöver inte sälja till den som lagt det högsta budet. Innan köpekontraktet är undertecknat av bägge parter har inget bindande avtal träffats. Om någon spekulant lämnar ett bud efter avslutad budgivning, men innan köpekontraktet undertecknats, är det fastighetsmäklarens skyldighet att framföra detta bud till säljaren, som tar ställning till om budet ska beaktas eller inte.
Läs mer om budgivning härENERGIDEKLARATION
En energideklaration ger information om husets energianvändning och måste enligt lag göras innan en försäljning. Den visar även vilka åtgärder som kan göras för att minska husets energiförbrukning.
Energideklarationen är giltig i 10 år. För att energideklarationen ska vara giltig ska den vara utförd av en ackrediterad energiexpert. Fritidshus behöver inte energideklareras.
Det är säljarens ansvar att se till att energideklarationen finns tillgänglig. Om energideklarationen saknas har köparen rätt att beställa en energideklaration inom 6 månader från tillträdet på säljarens bekostnad.
KÖPARENS UNDERSÖKNINGSPLIKT
Köpare uppmanas att undersöka bostaden de vill köpa. En köpare har nämligen en långtgående undersökningsplikt och fastighetens alla delar och funktioner ska undersökas. Köpare som inte har tillräckliga byggnadstekniska kunskaper bör anlita besiktningsman eller annan sakkunnig för undersökningen. Fel och brister som köparen skulle ha kunnat upptäcka vid en noggrann undersökning får inte användas mot säljaren i efterhand. Fel i fastigheten som köparen inte har haft anledning att räkna med och inte heller borde ha kunnat upptäcka vid en besiktning brukar kallas för dolda fel. En säljare kan vara ansvarig för dolda fel som upptäcks inom tio år efter försäljningen.
Fakta
- Pris
- 2 625 000 kr (Utropspris)
- Rum
- 5
- Boarea
- 118 m2
- Biarea
- 109 m2
- Byggår
- 1975
- Område
- Grödby
- Typ
- Småhus
- Tomtyta
- 941 m2
- Adress
- Stanganvägen 33
- Postnr
- 14896
- Ort
- Sorunda
Ansvarig Mäklare

Mari Svanström








Kök

Kök

Kök

Kök mot vardagsrum

Vardagsrum mot kök

Vardagsrum eldstad

Vardagsrum

Vardagsrum

Vardagsrum

Vardagsrum

Vardagsrum

Hall

Hall

Badrum

Sovrum 1

Sovrum 2

Sovrum 3

Planskiss ÖP

Planskiss NB

Allrum nedreplan

Allrum

Allrum

Allrum

Allrum

Badrum

Nedre plan

Tvättstuga

Kontor

Garage

Garage








































